We were invited to quote and make a proposal bid for refurbishment works at a Greater Manchester NHS hospital.
Our bid was not only successful over our competitors, in terms of best value and quality, but our experienced design team, utilising professional CAD drawings, were able to maximise capacity and body size storage. We were able to achieve this because our cabinets are specifically designed and manufactured to mortuary sizes, not over sized food industry cabinets.
The old cabinets were beyond their life cycle. The cooling systems, although renewed were failing, as was the racking. The floor panels with timber were significantly compromised, with fluid ingress heavily rotting and penetrating through to the floor beneath, damaging the altro flooring.
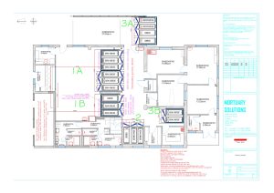
As you can see from the images below, we supplied professional drawings for the scheme, which includes further future phase plans. Below, our after images show 9 bay cabinets, with the latest energy efficient cooling plant systems. This particular project has 3 isolated bays, each with multi temperature systems for flexible refrigeration or freezer applications. This supported the ongoing needs of the Trust.
After images: Profession drawing. New cabinets with door protection panels and latest cooling plant technology. Further building works; trims, ceiling flooring are being completed post our works.

Before images: old inefficient cabinet panels compromised due to rotting timber structures and mould issues.
